SYNERGIMO Agence
Télécharger la fiche
+3
Nouveauté

Appartement 3 pièce(s) 2 chambre(s) 84 m²

Bordeaux (33000)
250 000 € Référence WDM071S

Caractéristiques de ce bien

  • Surface 84 m²
  • carrez 62,63 m²
  • séjour 28 m²
  • 2 chambre(s)
  • 1 salle(s) de bain
  • construit en 1900
  • kitchenette (semi-équipée)
  • Chauffage individuel : radiateur (electrique)
  • exposition Nord
  • 2 côté(s) mitoyen(s)
  • 1er étage
  • 3 étage(s)
  • vue Rue
  • interphone

A propos de ce bien

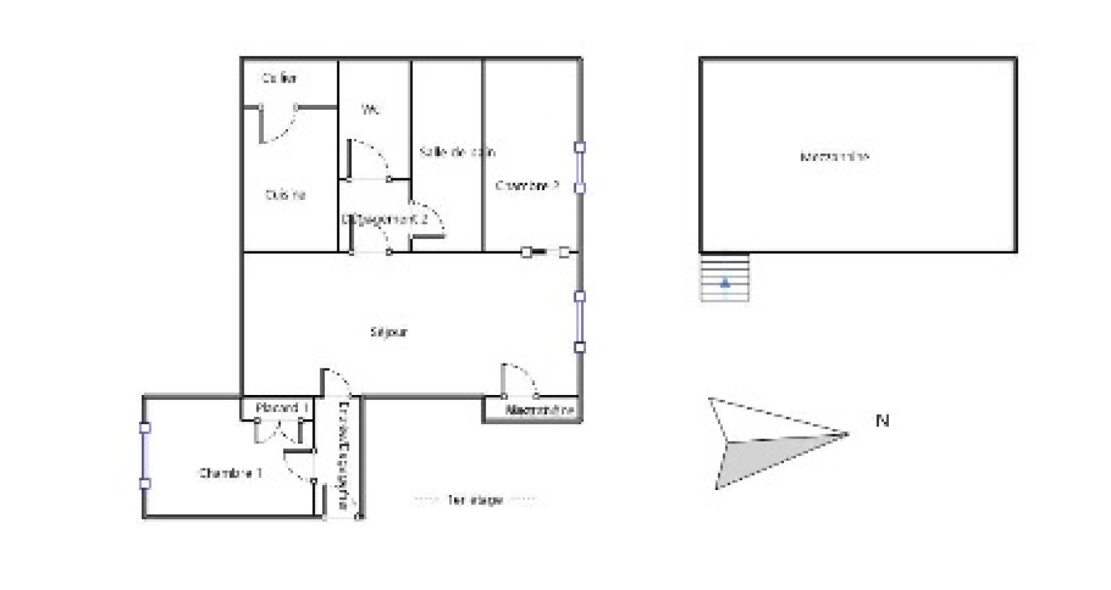
L'agence SYNERGIMO vous propose à Bordeaux PEY BERLAN, cet appartement de 3 pièces d'une surface habitable de 84 m2 (63m2 carrez).

L'appartement vous offre un grand espace de vie avec une tres belle hauteur sous plafond (3,80m) avec mezzanine, ouvert sur la cuisine, la salle de bain ainsi qu'une chambre sur rue. Une chambre principale sur cour complète l'ensemble.

A proximité immédiate des transports en commun (arrêt Sainte Catherine Tram A à 50m et arret Pey Berlan Tram A/B), des commerces, cet appartement est idéalement situé pour un investissement ou un premier achat.

Petite copropriété de 9 lots, toiture de l'immeuble refaite entièrement.

Idéal premier investisseur ou pour un couple.


Les informations sur les risques auxquels ce bien est exposé sont disponibles sur le site Géorisques

Composition du bien

Rez-de-chaussée

  • chambre 11.80 m²
  • cuisine 4 m²
  • salon/sejour 28 m²
  • chambre 7.50 m²
  • salle de bain 3.70 m²

Diagnostics énergétiques

Consommation énergétique
A B C D E F G
Emission de gaz à effet de serre
A B C D E F G

Montant estimé des dépenses annuelles d'énergie pour un usage standard est compris entre 960 € et 1 340 € . Prix moyens des énergies indexés sur les années 2021, 2022 et 2023 (abonnements compris).

Informations financières

Prix de vente 250 000 € Les honoraires d'agence seront intégralement à la charge du vendeur
Dépôt de garantie TTC 5 €
Taxe foncière annuelle 1 105 €

Informations de copropriété

Copropriété Oui
Nombre de lots 9
Quote part annuelle des charges 1 400 €
Plan de sauvegarde Non
Statut du syndic Pas de procédure en cours

Calcul des mensualités

* Champs obligatoires